BIAŁYSTOK, CENTRUM

Lokal na wynajem

Opis nieruchomości

 
***  POWIERZCHNIA BIUROWA ***

*** BLISKO CENTRUM ***

*** BUDYNEK Z WINDĄ ***

 
 
Polecam do wynajmu atrakcyjny lokal biurowo-usługowy zlokalizowany nowoczesnym budynku blisko dworca PKS/PKP w centrum Białegostoku.

Dostęp do budynku oraz lokalu przystosowany dla osób niepełnosprawnych.

Budynek usytuowany w prestiżowej lokalizacji, monitorowany, z windą, wejście do budynku bezpośrednio z ulicy. W bliskiej lokalizacji liczne usługi i restauracje. Parking dla klientów dostępny na ulicy.

Podwyższony standard wykończenia samego budynku oraz powierzchni proponowanej do wynajęcia.

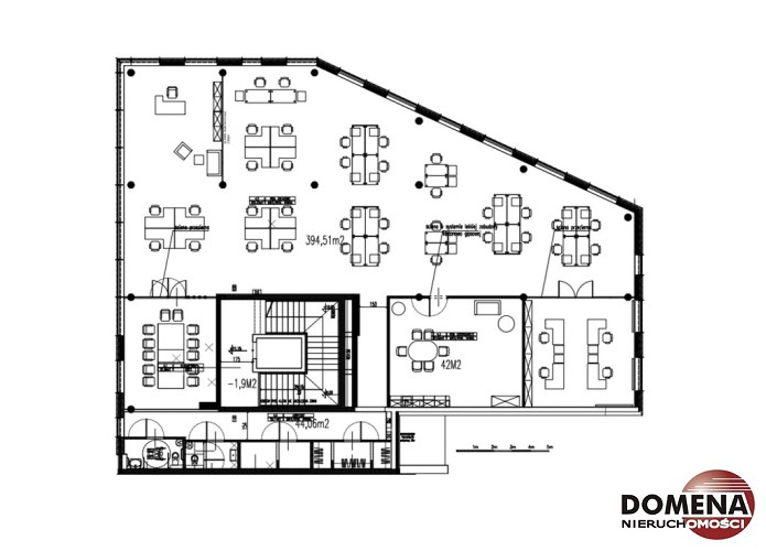
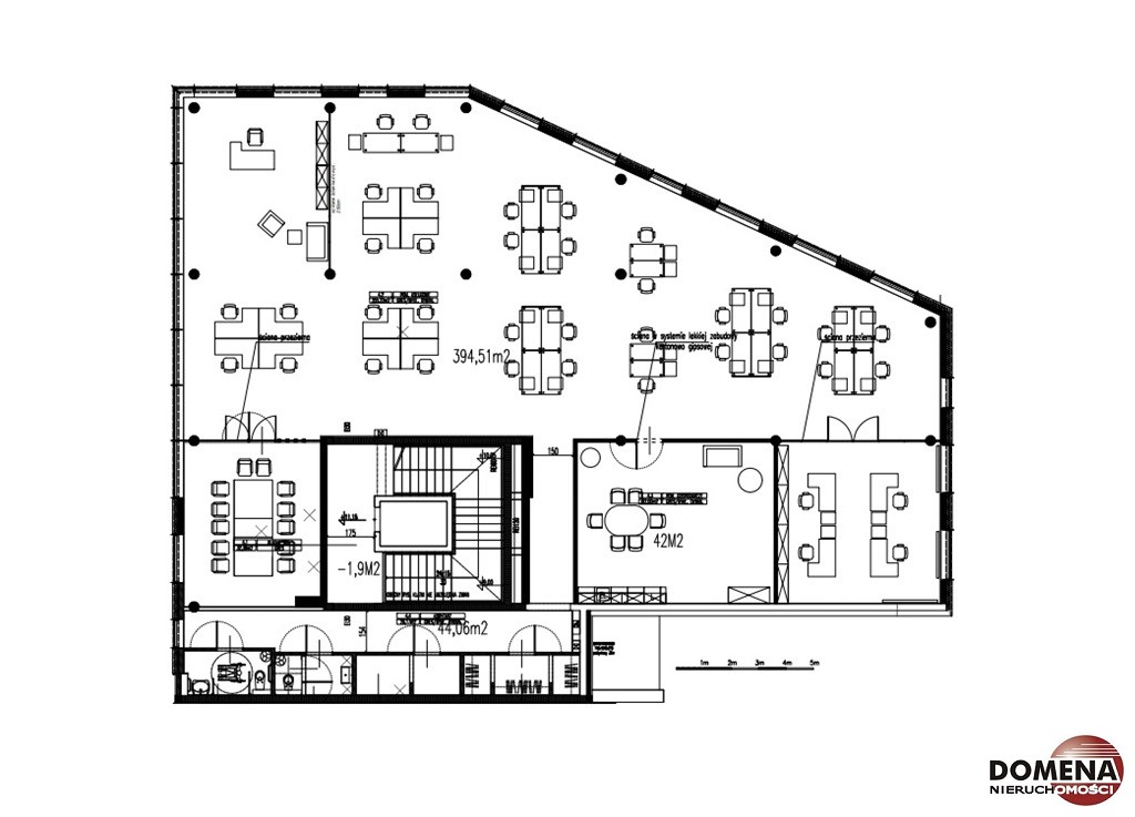
Na powierzchni 439 m2 znajduje się pomieszczenie typu open space, 3 gabinety biurowe (możliwość dowolnej aranżacji wnętrza wg potrzeb najemcy), 2 toalety, powierzchnia socjalna, korytarz.

Lokal wykończony w dobrym standardzie, ściany do ewentualnego odświeżenia; wyposażone w klimatyzację.

Wysokość pomieszczeń - 2,90m.

Koszt wynajmu miesięczne - 48 zł netto/m2/m-c (+VAT 23%) + opłaty eksploatacyjne za media: prąd, ogrzewanie, woda; podatek od nieruchomości.

Wymagana kaucja zabezpieczająca.

Lokal dostępny od 1 lipca.

Oferta wyjątkowa - zapraszam na bezpłatną prezentację.
 
*** bialystok - nieruchomości . pl ***

 

Nota prawna

Opis oferty zawarty na stronie internetowej sporządzany jest na podstawie oględzin nieruchomości oraz informacji uzyskanych od właściciela, może podlegać aktualizacji i nie stanowi oferty określonej w art. 66 i następnych K.C.

Szczegóły oferty

Symbol oferty LW-9592
Powierzchnia 439,00 m²
Piętro 3
Rodzaj budynku biurowiec
Standard
Opłaty w czynszu CO, Woda
Opłaty wg liczników CO, Prąd, Woda
Ilość pięter w budynku 3
Stan lokalu Do wprowadzenia
Stan prawny Własność
Okna nowe PCV
Rodzaj lokalu jednopoziomowy
Przeznaczenie lokalu biurowy, usługowy
Dojazd asfalt
Ogrzewanie miejskie
Winda tak
Liczba wind 1
Usytuowanie środkowe
Przystosowania dla niepełnosprawnych tak
Położenie lokalu główna ulica handlowa
Wejście od ulicy

Pomieszczenia

Liczba pomieszczeń biurowych 5
Liczba pomieszczeń socjalnych 1
Liczba pomieszczeń sanitarnych 2

Lokalizacja

Podobne oferty

lokal na wynajem - BIAŁYSTOK, STAROSIELCE

lokal na wynajem

BIAŁYSTOK, STAROSIELCE
  537,00 m2 40,00 zł/m2
lokal na wynajem - BIAŁYSTOK, NOWE MIASTO

lokal na wynajem

BIAŁYSTOK, NOWE MIASTO
  600,00 m2 37,00 zł/m2
lokal na wynajem - BIAŁYSTOK, CENTRUM

lokal na wynajem

BIAŁYSTOK, CENTRUM
  310,00 m2 54,84 zł/m2
lokal na wynajem - BIAŁYSTOK, CENTRUM

lokal na wynajem

BIAŁYSTOK, CENTRUM
  330,00 m2 49,00 zł/m2

Napisz do nas

Proszę wypełnić to pole
Proszę wypełnić to pole
Proszę wypełnić to pole
Proszę wypełnić to pole
Trwa wysyłanie...

Ta strona wykorzystuje pliki cookies w celach statystycznych oraz w celu dostosowania naszych serwisów do indywidualnych potrzeb klientów. Zmiany ustawień dotyczących plików cookie można dokonać w dowolnej chwili modyfikując ustawienia przeglądarki. Korzystanie z tej strony bez zmian ustawień dotyczących cookies oznacza, że będą one zapisane w pamięci urządzenia.

rozumiem