SOCHONIE

Dom na sprzedaż

Opis nieruchomości

*** DOM WOLNOSTOJĄCY ZA MIASTEM ***

*** DUŻA DZIAŁKA ***

*** SZYBKI I SPRAWNY DOJAZD DO BIAŁEGOSTOKU ***

 
Polecam dom wolnostojący w stanie surowym zamkniętym zlokalizowane w urokliwej miejscowości blisko Białegostoku.

Oferta godna uwagi dla osób szukających spokojnej lokalizacji z szybkim dojazdem do Białegostoku.

Kupujący zwolniony z podatku PCC 2%.

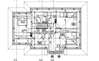
Dom wolnostojący o nowoczesnej bryle architektonicznej, parterowy z poddaszem użytkowym, niepodpiwniczony o powierzchni użytkowej 144m2, usytuowany na dużej działce 890m2.

Parter: salon z jadalnią z miejscem na kominek i wyjściem na taras, pokój, kuchnia, łazienka, WC, garaż 1-stanowiskowy w bryle budynku.
Poddasze użytkowe: 4 sypialnie (garderoba), duża łazienka z WC, korytarz.
Strych nieużytkowy.

Technologia budowy: murowany - pustak Porotherm; więźba dachowa drewniana, pokrycie – dachówka betonowa Braas; elewacja + okna PCV.

Dom do samodzielnego wykończenia.

Dostępne media doprowadzone do granic działki: prąd, woda, kanalizacja; gaz - w planach.

Przewidziane ogrzewanie własne dla budynku - do wyboru przez inwestora.
 
Oferta godna uwagi. Polecam. 
 
*** ZAPRASZAM NA BEZPŁATNĄ PREZENTACJĘ ***
*** bialystok - nieruchomosci . pl ***

Nota prawna

Opis oferty zawarty na stronie internetowej sporządzany jest na podstawie oględzin nieruchomości oraz informacji uzyskanych od właściciela, może podlegać aktualizacji i nie stanowi oferty określonej w art. 66 i następnych K.C.

Szczegóły oferty

Symbol oferty DS-9986
Powierzchnia 143,00 m²
Powierzchnia działki 890 m²
Ilość pokoi 6
Rodzaj domu wolnostojący
Technologia budowlana beton komórkowy
Standard
Ilość pięter w budynku 1
Garaż w budynku
Okna nowe PCV
Zagosp. działki zagospodarowana
Ukształtowanie działki płaska
Kształt działki prostokąt
Pokrycie dachu blachodachówka
Stan budynku do wykończenia wewnątrz
Rok budowy 2023
Gaz na działce
Woda tak - własna
Dojazd asfalt
Otoczenie działki zabudowane
Ogrzewanie własne dla budynku
Prąd tak
Kanalizacja szambo

Pomieszczenia

Podłogi pokoi wylewka
Typ kuchni bez zabudowy
Rodzaj kuchni aneks kuchenny - połączony z salonem
Typ łazienki razem z wc
Liczba łazienek 2
Liczba przedpokoi 2

Lokalizacja

Kalkulator kredytowy

PLN
%
Wysokość raty

Kalkulator kosztów

PLN
PLN
PLN
PLN
PLN
PLN
%
PLN
Podatek od czynności cywilno-prawnych
Taksa notarialna (opłata notarialna)
VAT od taksy notarialnej (opłaty notarialnej)
Wniosek do WKW
VAT od wniosku do WKW
Prowizja agencji nieruchomości
VAT od prowizji agencji nieruchomości
Wypisy aktu notarialnego - około
RAZEM (cena + opłaty)

Napisz do nas

Proszę wypełnić to pole
Proszę wypełnić to pole
Proszę wypełnić to pole
Proszę wypełnić to pole
Trwa wysyłanie...

Ta strona wykorzystuje pliki cookies w celach statystycznych oraz w celu dostosowania naszych serwisów do indywidualnych potrzeb klientów. Zmiany ustawień dotyczących plików cookie można dokonać w dowolnej chwili modyfikując ustawienia przeglądarki. Korzystanie z tej strony bez zmian ustawień dotyczących cookies oznacza, że będą one zapisane w pamięci urządzenia.

rozumiem