BIAŁYSTOK, JAROSZÓWKA

Dom na sprzedaż

Opis nieruchomości


***  DOM ENERGOOSZCZĘDNY  ***

*** os.JAROSZÓWKA ***

*** POMPA CIEPŁA + FOTOWOLTAIKA ***

 

Polecamy do sprzedaży domy jednorodzinne w zabudowie szeregowej w stanie pełnym deweloperskim zlokalizowane w Białymstoku na os.Jaroszówka.

Inwestycja nowopowstającego osiedla położona jest w spokojnej okolicy  z szybkim dostępem do centrum miasta.

Kupujący nie płaci podatku PCC - 2%.

Dom sprzedawany w stanie pełnym deweloperskim z pompą ciepła i fotowoltaiką. 

Nowoczesna bryła budynku świetnie wpasowuje się aktualne trendy architektoniczne.

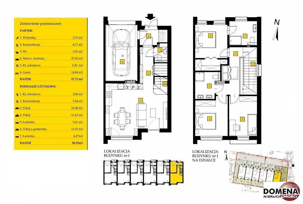
Dom w zabudowie szeregowej - segment środkowy, parterowy z poddaszem użytkowym, niepodpiwniczony, usytuowany na działce o pow. 137m2. Powierzchnia użytkowa domu wynosi 116m2.

Parter: salon z kuchnią formie aneksu z wyjściem na taras, WC, wiatrołap, kotłownia, garaż jednostanowiskowy w bryle budynku.
Poddasze użytkowe: 3-4 sypialnie sypialnie, łazienka z WC, korytarz.
Strych z możliwością adaptacji na powierzchnię użytkową.

Technologia budowy murowany, docieplone styropianem grafitowym gr. 18 cm, więźba dachowa drewniana ocieplana wełną mineralną 30cm (ocieplenie na poziomie jętek i krokwi); okna energooszczędne 3-szybowe PCV. Działka zagospodarowana ogrodzona, przygotowany teren pod trawnik, podjazd i opaska wokół budynku z kostki brukowej.

Dom kompleksowo wykończony od zewnątrz - elewacja, stolarka okienna i drzwiowa, brama garażowa sterowana pilotem, parapety zewnętrzne; oraz wewnątrz – tynki wewnętrzne, instalacje elektryczna; wodno-kanalizacyjna, posadzki, instalacja centralnego ogrzewania - ogrzewanie podłogowe w całym domu;  zamontowana powietrzna pompą ciepła oraz wentylacja mechaniczna z rekuperatorem (odzyskiem ciepła).

Dostępne media: prąd, woda, kanalizacja.

Przewidziane ogrzewanie - własne dla budynku: pompa ciepła, rekuperacja.

Dostępne segmenty:
Segment środkowy - pow. domu 116m2 na działce 137m2 - cena 805.000 zł
Segment skrajny - pow. domu 116m2 na działce 253m2 - cena 860.000 zł

Przewidywany termin realizacji - IV kwartał 2026r.

Zapraszam - oferta godna polecenia.
 
*** ZAPRASZAM NA BEZPŁATNĄ PREZENTACJĘ ***

*** BIALYSTOK - NIERUCHOMOSCI PL ***

Nota prawna

Opis oferty zawarty na stronie internetowej sporządzany jest na podstawie oględzin nieruchomości oraz informacji uzyskanych od właściciela, może podlegać aktualizacji i nie stanowi oferty określonej w art. 66 i następnych K.C.

Szczegóły oferty

Symbol oferty DS-9549
Powierzchnia 116,00 m²
Powierzchnia działki 137 m²
Ilość pokoi 4
Rodzaj domu szereg środkowy
Technologia budowlana silikat
Standard
Ilość pięter w budynku 1
Garaż w budynku
Stan prawny Własność
Okna nowe PCV
Balkon brak
Liczba tarasów 1
Zagosp. działki zagospodarowana
Ukształtowanie działki płaska
Kształt działki prostokąt
Stan budynku do wykończenia
Ogrodzenie działki tak
Rok budowy 2025
Woda tak - miejska
Otoczenie działki zabudowane
Ogrzewanie własne dla budynku
Tarasy taras
Prąd tak
Kanalizacja tak

Pomieszczenia

Typ łazienki razem z wc
Liczba łazienek 2
Liczba WC 1
Liczba przedpokoi 2

Lokalizacja

Kalkulator kredytowy

PLN
%
Wysokość raty

Kalkulator kosztów

PLN
PLN
PLN
PLN
PLN
PLN
%
PLN
Podatek od czynności cywilno-prawnych
Taksa notarialna (opłata notarialna)
VAT od taksy notarialnej (opłaty notarialnej)
Wniosek do WKW
VAT od wniosku do WKW
Prowizja agencji nieruchomości
VAT od prowizji agencji nieruchomości
Wypisy aktu notarialnego - około
RAZEM (cena + opłaty)

Podobne oferty

dom na sprzedaż - BIAŁYSTOK, JAROSZÓWKA

dom na sprzedaż

BIAŁYSTOK, JAROSZÓWKA
6 pokoi 155,00 m2 3 670,97 zł/m2
dom na sprzedaż - BIAŁYSTOK, BAGNÓWKA

dom na sprzedaż

BIAŁYSTOK, BAGNÓWKA
5 pokoi 161,00 m2 5 583,85 zł/m2
dom na sprzedaż - BIAŁYSTOK, BAGNÓWKA

dom na sprzedaż

BIAŁYSTOK, BAGNÓWKA
4 pokoje 135,00 m2 7 333,33 zł/m2
dom na sprzedaż - BIAŁYSTOK, SKORUPY

dom na sprzedaż

BIAŁYSTOK, SKORUPY
5 pokoi 120,00 m2 5 208,33 zł/m2

Napisz do nas

Proszę wypełnić to pole
Proszę wypełnić to pole
Proszę wypełnić to pole
Proszę wypełnić to pole
Trwa wysyłanie...

Ta strona wykorzystuje pliki cookies w celach statystycznych oraz w celu dostosowania naszych serwisów do indywidualnych potrzeb klientów. Zmiany ustawień dotyczących plików cookie można dokonać w dowolnej chwili modyfikując ustawienia przeglądarki. Korzystanie z tej strony bez zmian ustawień dotyczących cookies oznacza, że będą one zapisane w pamięci urządzenia.

rozumiem